Ref. 001872
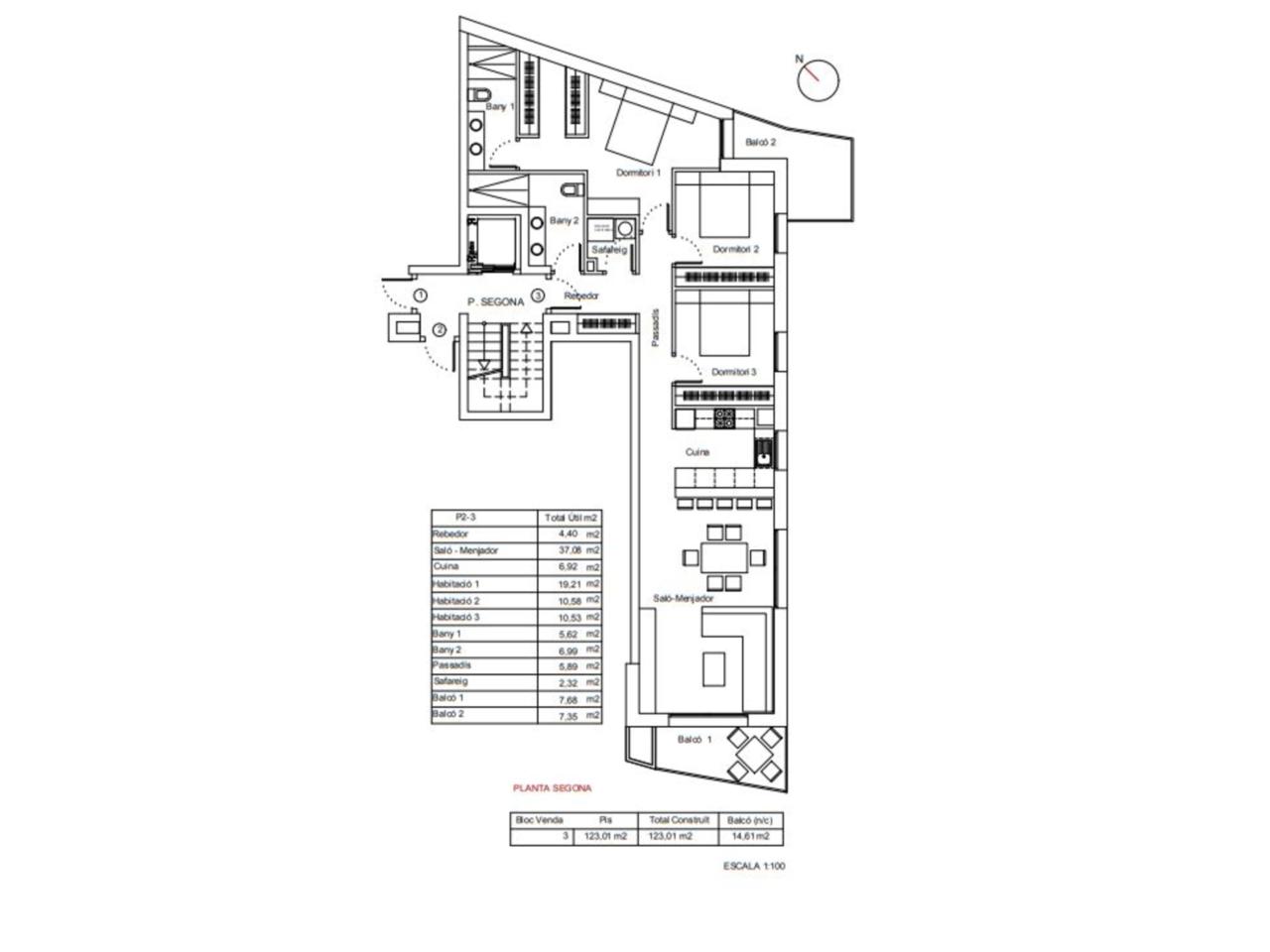
Residencial MARIÓ - El projecte està situat a les altures d'ESCALDES-ENGORNANY, al 33 de carretera dels Vilars. Aquesta residència de 28 apartaments destaquen elements de fusta i materials moderns, amb un disseny funcional. Consta de dos edificis (A i B) i un soterrani comú. Els apartaments tenen acabats i materials d'alta qualitat. La promoció es compon d'habitatges de 1, 2, 3 i 4 dormitoris. Pisos des 90m2 fins a 224 m2 d'espai habitable. Tots ells amb amplis balcons i terrasses.
Situat en un entorn tranquil i privilegiat, Mario Andorra ofereix apartaments de prestigi amb grans i amplis espais, zones d'estar de fins a 224 m2 d'espai habitable.
D'estil contemporani i amb espais agradables, convertirà les vostres estades en moments únics. Els interiors càlids i refinats dels apartaments són una invitació a la relaxació Ofereix serveis de luxe i excepcionals de gamma alta. És ideal, tant per la seva vida quotidiana, com per disfrutar de vacances i els plaers de muntanya i esquí.
Tots els habitatges tenen la possibilitat d'adquirir places d'aparcament i trasters.
Residencial MARIÓ - El projecte està situat a les altures d'ESCALDES-ENGORNANY, al 33 de carretera dels Vilars. Aquesta residència de 28 apartaments destaquen elements de fusta i materials moderns, amb un disseny func...
Residencial MARIÓ - El projecte està situat a les altures d'ESCALDES-ENGORNANY, al 33 de carretera dels Vilars. Aquesta residència de 28 apartaments destaquen elements de fusta i materials moderns, amb un disseny funcional. Consta de dos edificis (A i B) i un soterrani comú. Els apartaments tenen acabats i materials d'alta qualitat. La promoció es compon d'habitatges de 1, 2, 3 i 4 dormitoris. Pisos des 90m2 fins a 224 m2 d'espai habitable. Tots ells amb amplis balcons i terrasses.
Situat en un entorn tranquil i privilegiat, Mario Andorra ofereix apartaments de prestigi amb grans i amplis espais, zones d'estar de fins a 224 m2 d'espai habitable.
D'estil contemporani i amb espais agradables, convertirà les vostres estades en moments únics. Els interiors càlids i refinats dels apartaments són una invitació a la relaxació Ofereix serveis de luxe i excepcionals de gamma alta. És ideal, tant per la seva vida quotidiana, com per disfrutar de vacances i els plaers de muntanya i esquí.
Tots els habitatges tenen la possibilitat d'adquirir places d'aparcament i trasters.
Llegir més
| Pàrquing |
|
| Permet mascotes |
|
| Calefacció |
|
| Aire condicionat |
|
| Ascensor |
|
| Balcó |
|
| Terrassa |
|
| Planta |
2
|
| Superfície útil |
123 m2
|
| Accepten mascota |
|
| Traster |
|