Ref. 001810
Edifici sencer per a inversor d’una antiguitat estimada de 9 anys amb un estat de conservació òptim i d’una superficie total construïda de 1088,70 metres quadrats.
RENTABILITAT ACTUAL 3% ANY.
6 pisos i planta baixa actualment llogats.
Accès a través de la Plaça del Consell, 13.
Façana de granit i de mur cortina a PB i P1. Finestres de doble vidre a totes les plantes. Accès a l’edifici amb dues portes de vidre de seguretat automàtiques.
Coberta de llosa de pissarra.
Actualment la planta baixa està llogada a establiment bancari i la resta d’ habitatges també són llogats, i es composa de:
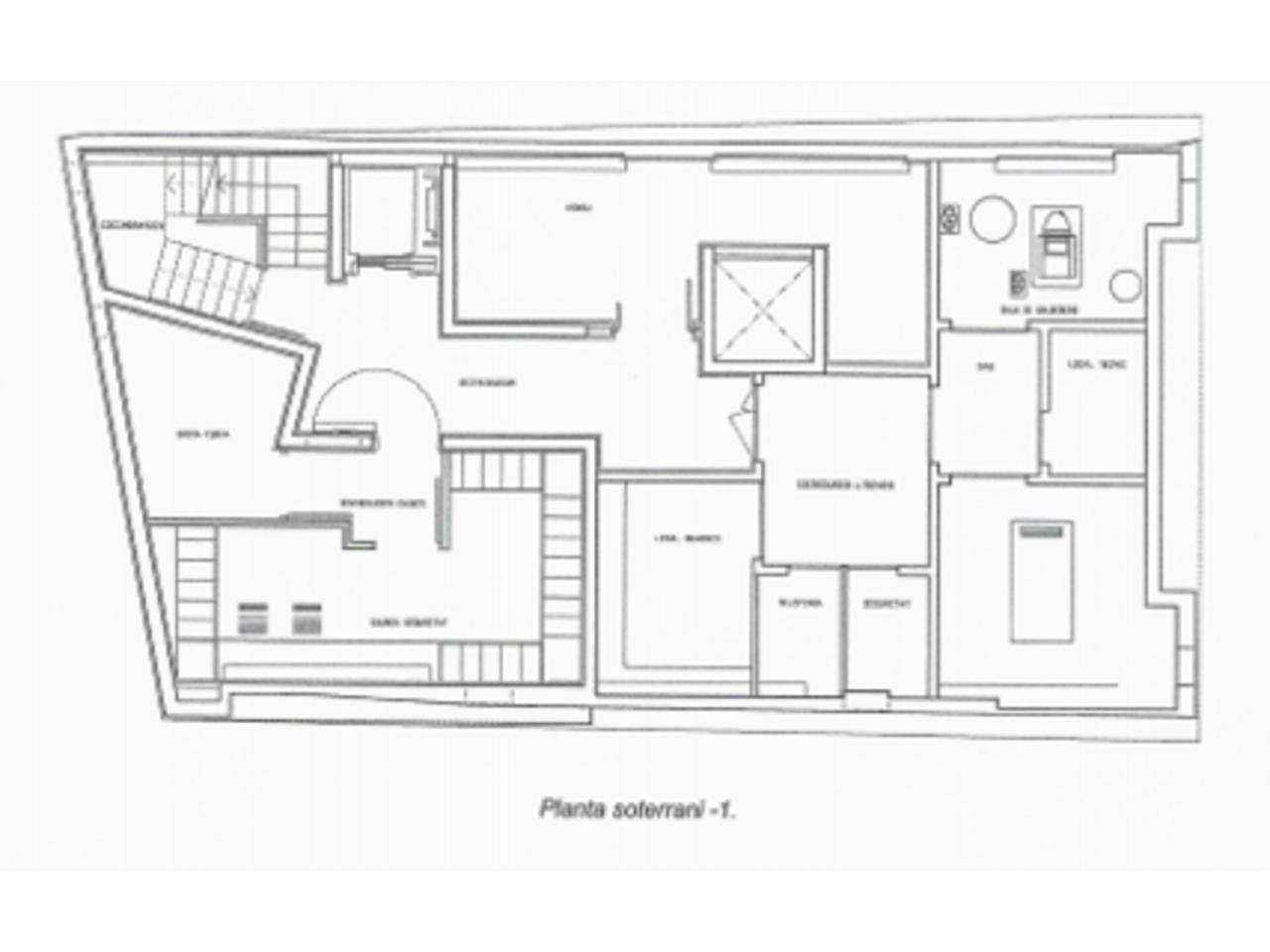
A) Planta soterrani -1 amb locals tècnics de 160,60m2 i caixes de seguretat 19,88m2. El terra i els acabats són de marbre i gres porcel·lànic i portes metàl·liques.
B) Planta Baixa amb una oficina bancària actual de 180,48 m2.
Terra de gres porcel·lànic imitació pissarra, parets de fusta. Comunicació interior mitjançant un ascensor de capacitat per a 9 pax i 630Kg de 3 parades i escala de marbre.
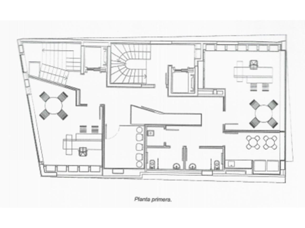
C) Planta 1 amb oficines i despatxos de 180,48m2.El terra és de marbre i de moqueta. Els banys de gres porcel·lànic imitació pissarra amb sanitaris i sistemes Gerevit i Hidrovent.
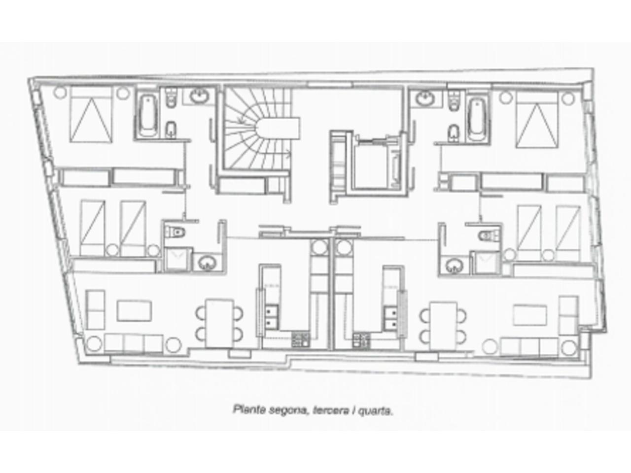
D) Planta 2, 3 i 4 amb habitatges d’un total de 182,42m2. Hi ha 6 pisos que disposen de cuina-menjador amb passaplats, 1 bany amb dutxa, 2 dormitoris (1 suite amb bany complert), armaris encastats, porta d’entrada de fusta i seguretat, parquet laminat en habitacions, cuina i bany amb terra de granet, Cuina amb armaris lacats, encimera de granet i electrodomèstics siemens. Sanitaris Duravit.
La calefacció és mitjançant bomba de fred i de calor
Edifici a ENCAMP
L’edifici es troba situat en una zona cèntrica d’Encamp, molt a prop del Comú i relativament a prop del Funicamp, porta d’accès a Grandvalira.
Situat a la Plaça del Consell, punt d’unió de dues avingudes principals de la Parròquia (Av.Joan Martí i Av.François Miterrand). Connecta amb Canillo i França.
UA-SUC Mitjorn del POUP d’Encamp.
Ús dominant: residencial i terciari.
Usos admesos: hoteler, oficines, restauració, administratius, aparcament.
Urbanització: completament executada.
Entorn urbà.
Ben comunicat per carretera, des de les fronteres així com amb la resta de les valls.
Disposa de la majoria d’equipaments ubicats a la pròpia parroquia. Es troba a 6 minuts del centre del País, Andorra La Vella i Escaldes- Engordany.
Rodejada de diferents pàrquings públics, fet que garanteix la comoditat de mobilitat de la zona.
Edifici sencer per a inversor d’una antiguitat estimada de 9 anys amb un estat de conservació òptim i d’una superficie total construïda de 1088,70 metres quadrats.
RENTABILITAT ACTUAL 3% ANY.
6 pisos i plan...
Edifici sencer per a inversor d’una antiguitat estimada de 9 anys amb un estat de conservació òptim i d’una superficie total construïda de 1088,70 metres quadrats.
RENTABILITAT ACTUAL 3% ANY.
6 pisos i planta baixa actualment llogats.
Accès a través de la Plaça del Consell, 13.
Façana de granit i de mur cortina a PB i P1. Finestres de doble vidre a totes les plantes. Accès a l’edifici amb dues portes de vidre de seguretat automàtiques.
Coberta de llosa de pissarra.
Actualment la planta baixa està llogada a establiment bancari i la resta d’ habitatges també són llogats, i es composa de:
A) Planta soterrani -1 amb locals tècnics de 160,60m2 i caixes de seguretat 19,88m2. El terra i els acabats són de marbre i gres porcel·lànic i portes metàl·liques.
B) Planta Baixa amb una oficina bancària actual de 180,48 m2.
Terra de gres porcel·lànic imitació pissarra, parets de fusta. Comunicació interior mitjançant un ascensor de capacitat per a 9 pax i 630Kg de 3 parades i escala de marbre.
C) Planta 1 amb oficines i despatxos de 180,48m2.El terra és de marbre i de moqueta. Els banys de gres porcel·lànic imitació pissarra amb sanitaris i sistemes Gerevit i Hidrovent.
D) Planta 2, 3 i 4 amb habitatges d’un total de 182,42m2. Hi ha 6 pisos que disposen de cuina-menjador amb passaplats, 1 bany amb dutxa, 2 dormitoris (1 suite amb bany complert), armaris encastats, porta d’entrada de fusta i seguretat, parquet laminat en habitacions, cuina i bany amb terra de granet, Cuina amb armaris lacats, encimera de granet i electrodomèstics siemens. Sanitaris Duravit.
La calefacció és mitjançant bomba de fred i de calor
Edifici a ENCAMP
L’edifici es troba situat en una zona cèntrica d’Encamp, molt a prop del Comú i relativament a prop del Funicamp, porta d’accès a Grandvalira.
Situat a la Plaça del Consell, punt d’unió de dues avingudes principals de la Parròquia (Av.Joan Martí i Av.François Miterrand). Connecta amb Canillo i França.
UA-SUC Mitjorn del POUP d’Encamp.
Ús dominant: residencial i terciari.
Usos admesos: hoteler, oficines, restauració, administratius, aparcament.
Urbanització: completament executada.
Entorn urbà.
Ben comunicat per carretera, des de les fronteres així com amb la resta de les valls.
Disposa de la majoria d’equipaments ubicats a la pròpia parroquia. Es troba a 6 minuts del centre del País, Andorra La Vella i Escaldes- Engordany.
Rodejada de diferents pàrquings públics, fet que garanteix la comoditat de mobilitat de la zona.
Llegir més