Ref. 001811
Edifici en venda per a inversor d’una antiguitat estimada d’11 anys amb un estat de conservació òptim i d’una superficie total construïda de 822,10m2.
Edifici d´oficines cèntric a La Massana.
Rentabilitat d´un 4% ANY.
Accès a través de l’Avinguda Sant Antoni 37.
Actualment és un edifici destinat a ús d’oficina i es composa de:
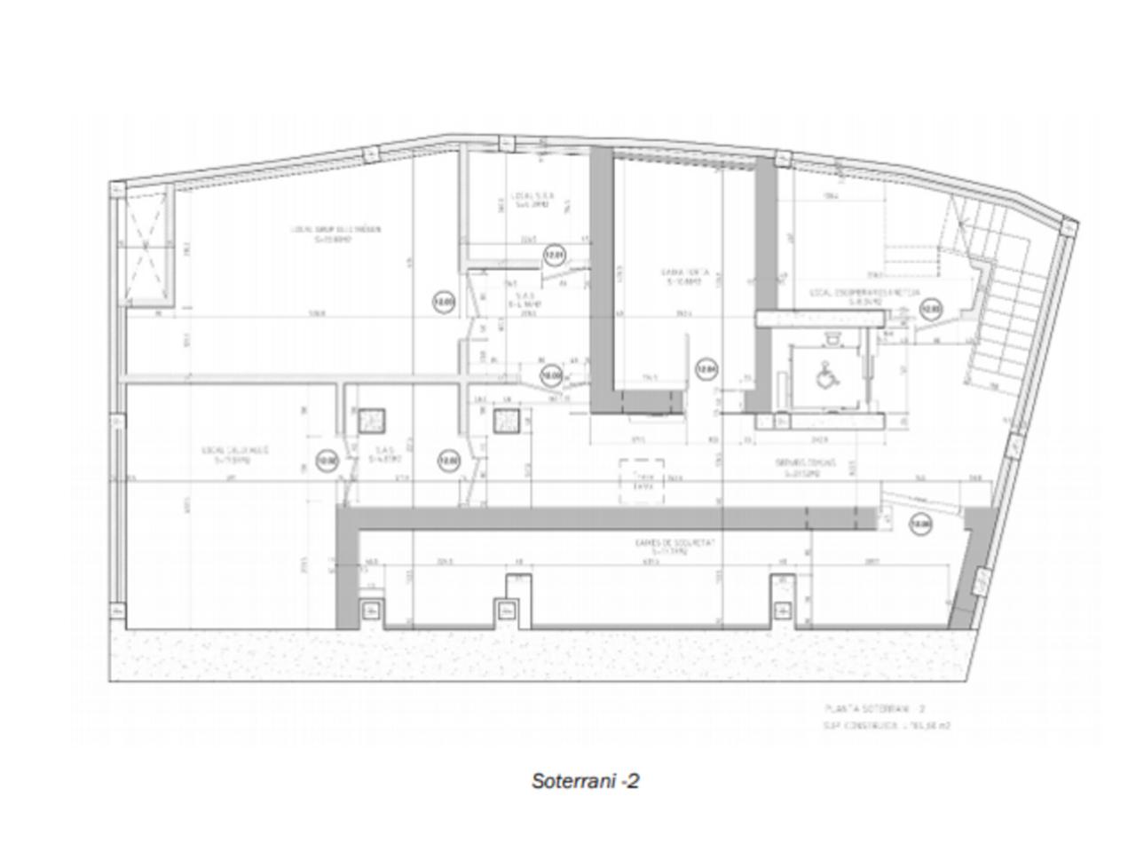
A) Planta soterrani -2 amb locals tècnics de 146,81m2 i caixes de seguretat 17,79m2. El terra i els acabats són de marbre i gres porcel·lànic i portes metàl·liques.
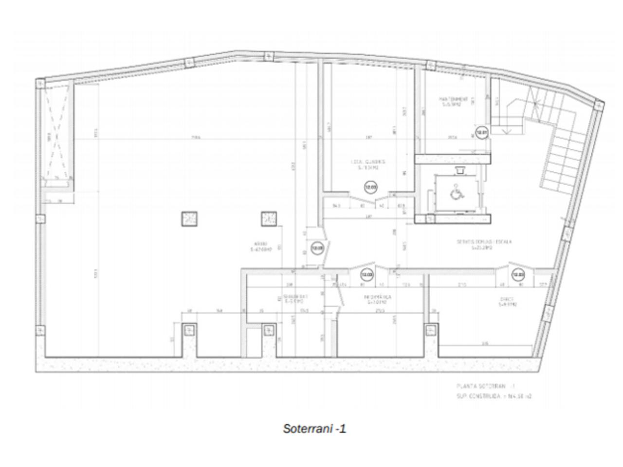
B) Planta soterrani -1 amb locals tècnics i d’arxiu de 164,6 m2. El terra i els acabats són de marbre i gres porcel·lànic i portes metàl·liques.
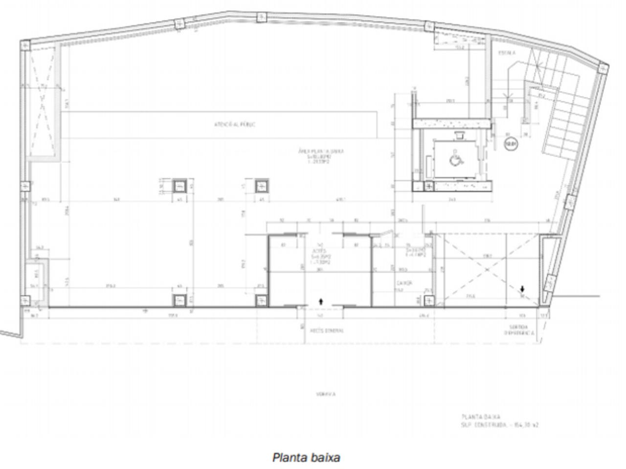
C) Planta Baixa amb una oficina bancària actual de 154,30 m2.
Terra de marbre i moqueta al 50%. Comunicació interior mitjançant un ascensor de capacitat per a 8 pax i 630Kg de 3 parades i escala de marbre. A l’àtic s’accedeix per l’escala.
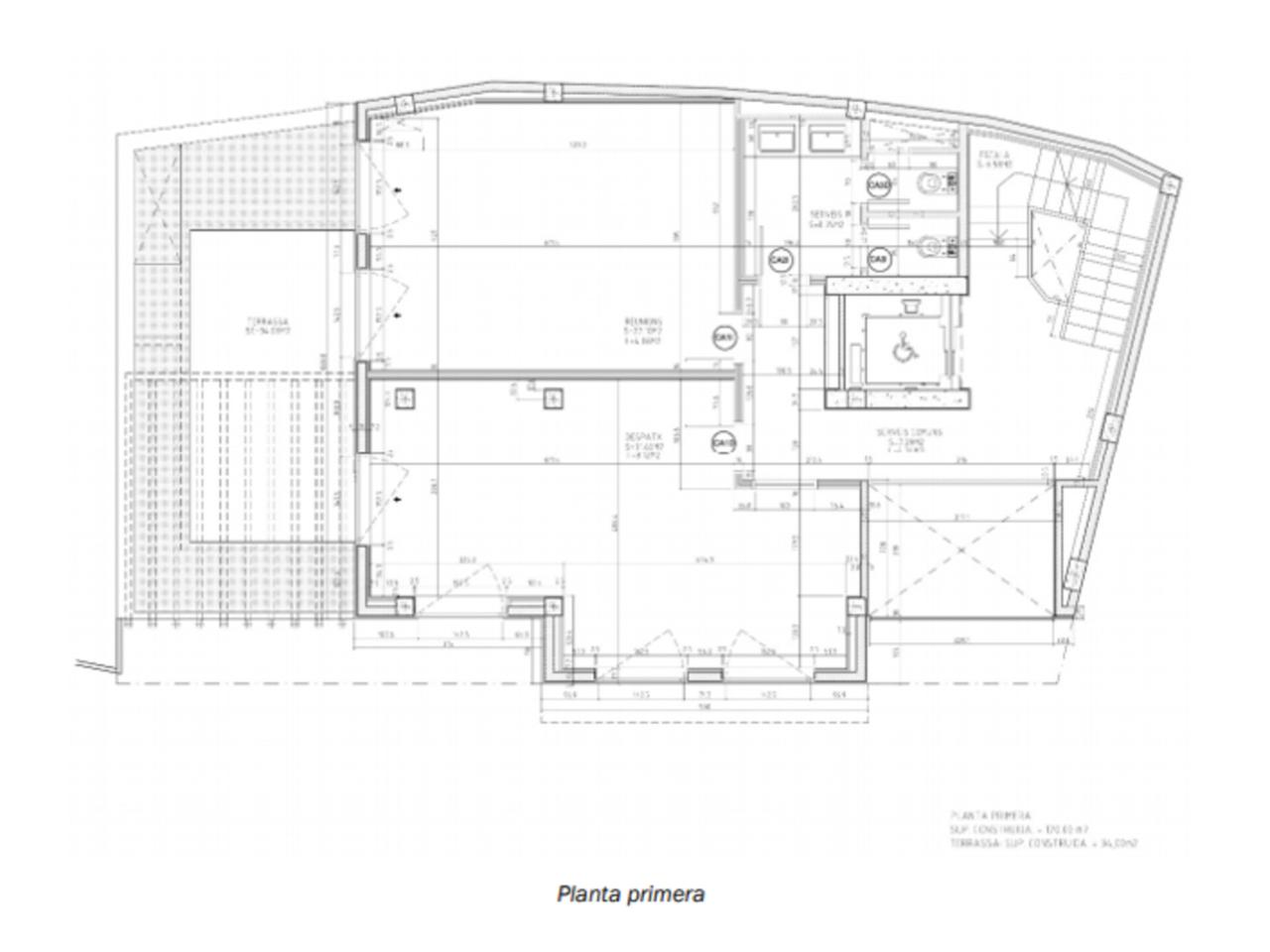
D) Planta 1 amb oficines i despatxos de 120m2 i Terrassa de 34m2. El terra és de marbre i de moqueta. Els banys de marbre amb sanitaris Duravit i aixetes Vola.
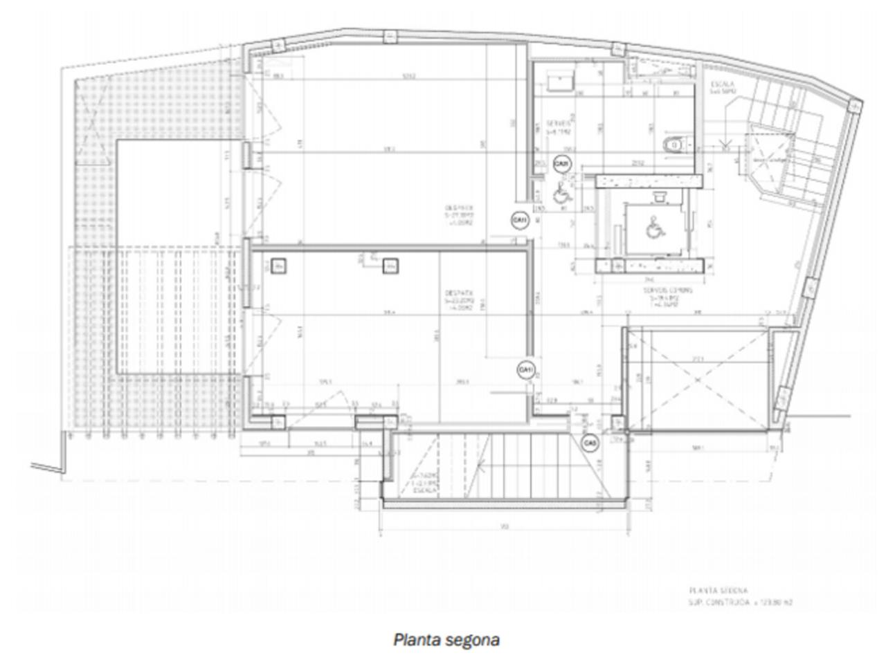
E) Planta 2 amb oficines i despatxos de 123,80 m2. El terra és de marbre i de moqueta. Els banys de marbre amb sanitaris Duravit i aixetes Vola i adaptat per a minusvàlids.
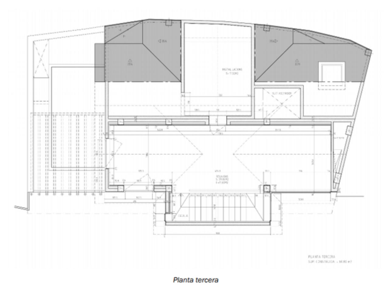
F) Planta 3/àtic zona de reunions i instal·lacions de 43,48m2 i 17,32 m2 respectivament. La planta àtic es diàfana, amb terra de moqueta, parets pintades i el sostre és de bigues de fusta.
La calefacció és mitjançant caldera central de gasoil.
Edifici a LA MASSANA
L’edifici es troba situat en una zona cèntrica de La Massana, a l’Av. De Sant Antoni que comunica Ordino amb el centre del País, molt a prop del Comú de La Massana i relativament a prop de l’edifici del Telecabina.
UA-A27 del POUP de La Massana.
Ús dominant: Habitatge plurifamiliar i comercial.
Usos admesos: hoteler, oficines, restauració, administratius, aparcament.
Urbanització: completament executada.
Entorn urbà.
Es tracta d’una zona en sòl urbà Consolidat.
Ben comunicat per carretera, des de les fronteres així com amb la resta de les valls.
Disposa de la majoria d’equipaments ubicats a la pròpia parroquia de La Massana. Es troba a 5 minuts del centre del País, Andorra La Vella i Escaldes- Engordany.
Rodejada de diferents pàrquings públics, fet que garanteix la comoditat de mobilitat de la zona
Edifici en venda per a inversor d’una antiguitat estimada d’11 anys amb un estat de conservació òptim i d’una superficie total construïda de 822,10m2.
Edifici d´oficines cèntric a La Massana.
Rentabilit...
Edifici en venda per a inversor d’una antiguitat estimada d’11 anys amb un estat de conservació òptim i d’una superficie total construïda de 822,10m2.
Edifici d´oficines cèntric a La Massana.
Rentabilitat d´un 4% ANY.
Accès a través de l’Avinguda Sant Antoni 37.
Actualment és un edifici destinat a ús d’oficina i es composa de:
A) Planta soterrani -2 amb locals tècnics de 146,81m2 i caixes de seguretat 17,79m2. El terra i els acabats són de marbre i gres porcel·lànic i portes metàl·liques.
B) Planta soterrani -1 amb locals tècnics i d’arxiu de 164,6 m2. El terra i els acabats són de marbre i gres porcel·lànic i portes metàl·liques.
C) Planta Baixa amb una oficina bancària actual de 154,30 m2.
Terra de marbre i moqueta al 50%. Comunicació interior mitjançant un ascensor de capacitat per a 8 pax i 630Kg de 3 parades i escala de marbre. A l’àtic s’accedeix per l’escala.
D) Planta 1 amb oficines i despatxos de 120m2 i Terrassa de 34m2. El terra és de marbre i de moqueta. Els banys de marbre amb sanitaris Duravit i aixetes Vola.
E) Planta 2 amb oficines i despatxos de 123,80 m2. El terra és de marbre i de moqueta. Els banys de marbre amb sanitaris Duravit i aixetes Vola i adaptat per a minusvàlids.
F) Planta 3/àtic zona de reunions i instal·lacions de 43,48m2 i 17,32 m2 respectivament. La planta àtic es diàfana, amb terra de moqueta, parets pintades i el sostre és de bigues de fusta.
La calefacció és mitjançant caldera central de gasoil.
Edifici a LA MASSANA
L’edifici es troba situat en una zona cèntrica de La Massana, a l’Av. De Sant Antoni que comunica Ordino amb el centre del País, molt a prop del Comú de La Massana i relativament a prop de l’edifici del Telecabina.
UA-A27 del POUP de La Massana.
Ús dominant: Habitatge plurifamiliar i comercial.
Usos admesos: hoteler, oficines, restauració, administratius, aparcament.
Urbanització: completament executada.
Entorn urbà.
Es tracta d’una zona en sòl urbà Consolidat.
Ben comunicat per carretera, des de les fronteres així com amb la resta de les valls.
Disposa de la majoria d’equipaments ubicats a la pròpia parroquia de La Massana. Es troba a 5 minuts del centre del País, Andorra La Vella i Escaldes- Engordany.
Rodejada de diferents pàrquings públics, fet que garanteix la comoditat de mobilitat de la zona
Llegir més