Ens preocupa la teva privacitatA pisos.com utilitzem cookies pròpies i de tercers per donar un servei satisfactori mitjançant cookies tècniques, de personalització i per a fins analítics. prem AQUÍ per més informació. Pots acceptar totes les cookies prement el botó "acceptar" o configurar-les o rebutjar el seu ús prement
Pis
de nova construcció
en venda
al Carrer
François Mitterrand
650.000 €
22107.4 m2
Sol·licita més informació
Escaldes-Engordany
Pis
650.000 €
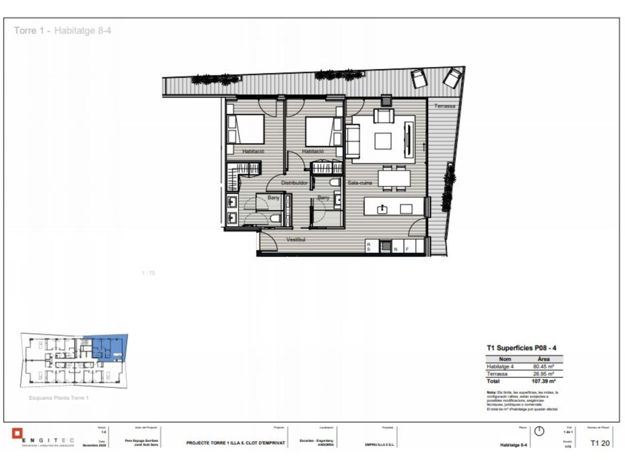
2 HabitacionsHabs- 2 Banys- 107.4 m2
Missatge enviat amb èxit En breu ens posarem en contacte.
S'ha produït un error. Intenti-ho més tard.
Envia a un amic
Missatge enviat amb èxit
S'ha produït un error. Intenti-ho més tard.
Ref. 001843
Pis de nova construcció d’alt standing en venda al centre d’Escaldes. Al punt més alt del Clot d’Emprivat es construeix un conjunt arquitectònic singular de tres torres en una mateixa illa urbana, amb l’obertura de façanes als 4 carrers (Consell de la Terra, Nacions Unides, François Mitterrand i Constitució). El projecte comprèn la construcció de tres torres de 10, 15 i 20 plantes i comptarà amb 274 places d’aparcament i 103 trasters. La primera fase s’inicia amb la torre de 15 plantes i tindrà la següent distribució: -Tres plantes comercials -Sis habitatges de dues habitacions de 74 i 85m² -Vint-i-cinc habitatges de tres habitacions de 98 i 111m² -Vuit habitatges de quatre habitacions entre 118 i 141m² Tots els habitatges disposen de terrasses perimetrals amb vistes panoràmiques d’una superfície d’entre 11 i 32m². Amb uns acabats de màxima qualitat i una aposta per l’eficiència energètica (climatització amb aerotèrmica). El preu de la plaça d´aparcament és a partir de 34.000 euros i el traster a partir de 5.000 euros.
Pis de nova construcció d’alt standing en venda al centre d’Escaldes. Al punt més alt del Clot d’Emprivat es construeix un conjunt arquitectònic singular de tres torres en una mateixa illa urbana, amb l’obe...
Pis de nova construcció d’alt standing en venda al centre d’Escaldes. Al punt més alt del Clot d’Emprivat es construeix un conjunt arquitectònic singular de tres torres en una mateixa illa urbana, amb l’obertura de façanes als 4 carrers (Consell de la Terra, Nacions Unides, François Mitterrand i Constitució). El projecte comprèn la construcció de tres torres de 10, 15 i 20 plantes i comptarà amb 274 places d’aparcament i 103 trasters. La primera fase s’inicia amb la torre de 15 plantes i tindrà la següent distribució: -Tres plantes comercials -Sis habitatges de dues habitacions de 74 i 85m² -Vint-i-cinc habitatges de tres habitacions de 98 i 111m² -Vuit habitatges de quatre habitacions entre 118 i 141m² Tots els habitatges disposen de terrasses perimetrals amb vistes panoràmiques d’una superfície d’entre 11 i 32m². Amb uns acabats de màxima qualitat i una aposta per l’eficiència energètica (climatització amb aerotèrmica). El preu de la plaça d´aparcament és a partir de 34.000 euros i el traster a partir de 5.000 euros.